ようこそ ゲスト 様
ログイン
会員登録
ご来店予約
西宮市甲陽園東山町 中古マンション(3LDK)
西宮市甲陽園東山町 中古マンション(3LDK)
HOME
お問い合わせ
モンテベルデ甲陽園
HOME
>
不動産
>
西宮市
>
甲陽園東山町
>
モンテベルデ甲陽園
>
2200.
00
万 / 3LDK
お問い合わせ番号:f00187-21997r
不動産/中古マンション
モンテベルデ甲陽園
西宮市甲陽園東山町
阪急電鉄甲陽線 甲陽園
( 徒歩 17分 )
甲陽園小学校
/
上ヶ原中学校
価格
2200.
00
万円
間取り
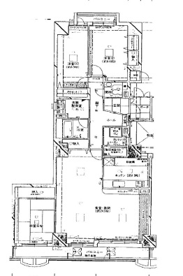
3LDK
物件の詳細、周辺環境、内覧のご予約など、お気軽にお問い合わせください。
管理費
修繕積立金
11,050円
11,850円
専有面積
118.51㎡
(35.85坪)
築年月
1991年3月
(平成3年3月)
駐車場
空有
(10,000円)
所在階
2階
地上階数
地下階数
6階
1階
構造
鉄筋コンクリート造(RC)
バルコニー方向
南
バルコニー面積
12.53㎡
総戸数
27戸
計測方式
壁芯
土地権利
所有権
不動産の現況
空家
入居/引渡
即時
管理形態
日勤
管理方式
全部委託
管理会社
日本ハウズイング株式会社
取引
仲介
■学校区:
甲陽園小学校
上ヶ原中学校
住宅ローンシミュレーション
ローンシミュレーション条件
頭金
なし
100
200
300
直接入力
万
万
ボーナス払い
(年2回)
なし
10
15
20
直接入力
万
万
借入利率
1.08
1.275
2.0
3
直接入力
%
%
借入年数
10
15
20
25
30
35
直接入力
年
年
条件を設定する
この条件を保存する
ローンシミュレーション結果
借り入れ金額
20,000,000
円
月々の返済額
(ボーナス月以外の年10回)
67,718
円
/月
ボーナス月の返済額
(年2回)
167,718
円
/月
年間の返済額
1,012,616
円
総支払額
(頭金含む)
32,378,480
円
※元利均等返済方式でシミュレーションしています。
※実際のご返済額はその他の条件により計算結果と異なりますので、予めご了承ください。
※シミュレーション結果はご返済の目安としてご利用ください。また、将来のお借り入れを約束するものではありません。
モンテベルデ甲陽園
周辺地図
Javascriptを有効にしてください。
モンテベルデ甲陽園
のことならお気軽にご相談ください。
苦楽園不動産
TEL:
0798-71-5050
営業時間:9:30 - 18:30(休日前は18:00)
定休日 :毎週火曜日と水曜日
メールでのお問い合わせ
お電話の場合は物件番号
< f00187-21997r >
を伝えていただくとスムーズにお応えできます。
214
1,463
▼
モンテベルデ甲陽園
の最新情報を掲載しています。
モンテベルデ甲陽園
の周辺環境、インターネットに掲載以外の物件等、何でもお気軽にご相談下さい。